室内家具的分类
按使用功能可分为:
支承类家具:如椅子、床、凳子g a n l v 5 c o m。
凭倚类家具:如桌子、写字台、案几等赶驴网www.ganlv5.com。
储藏类家具:如书架、衣柜、鞋柜等ganlv5.com。
装饰类家具:如装饰架、博古架等赶_驴_网。
按结构特征可分为:
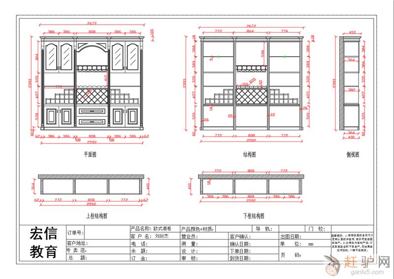
框式家具:以榫结合为主要特征
板式家具:以人造板为主要不部件,五金配件连接
拆装式家具:以各种连接件和插装件连接而成,可反复拆装
折叠家具:能将各部位折叠以节约空间或方便携带
曲木家具:以实木弯曲或人造板弯曲而成
壳体家具:利用可塑原材料一次模压或浇注成型
悬浮家具:在高强度内囊里充入气体、或水的一种家具
按制作材料可分为:
木质家具:有实木和各种复合板材料构成
塑料家具:用塑料加工而成
竹藤家具:以藤条、竹条加工而成,东南压风格的室内装饰比较多见
金属家具:以金属为主材,给人现代感
玻璃家具:以玻璃为主要构件
皮质家具:以皮为面料的家具赶~驴~网。
宏信培训是专业从事培训定制家具行业设计师、销售、运营管理的培训机构,也是惠州首家专业定制家具设计师培训机构来自www.ganlv5.com。凭借旗下高端产业楷模家居、东家、圣萝莎定制,提供实践、实习,学成月薪6000元只是起点,月薪上万只是开始!
宏信定制家具设计培训,定制家具衣柜、厨柜、电视柜、酒柜、衣帽间设计师培训,仅防假冒!!!
职业不在迷茫,不分男女,都可以干,一台电脑,一把尺子,定制家具设计师培训,培养高逼格的职业,全城首创,面向全国招生,来宏信教育-从此人生有归途赶~驴~网。
认准宏信定制家具学习内容:理论+软件+手绘+实践学习
一、 理论:熟悉定制家具衣柜、厨柜、电视柜、酒柜、衣帽间等行业尺寸、设计、材质!
二、 软件: CAD、手绘、三维家、圆方软件
三、 手绘:徒手草图、工具手绘
四、 实践:宏信实践家具门店(楷模家居、东家、圣萝莎定制)
五、 拆单:家具拆单的流程,工程师设计好家具的样式后,负责拆单的师傅对照图纸分解成零部件(例:顶板、侧板、底板之类等)
六、 毕业:全案设计、测量、出方案、设计、复尺、报价、拆单
惠城校区地址:惠州市惠城区演达一路12号鲁惠国际11楼宏信教育(港惠新地斜对面)
惠阳校区地址:惠州市惠阳区淡水镇区政府旁民生广场二楼
博罗校区地址:惠州市博罗县罗阳镇博惠路148号石油大厦2楼
陈江校区地址:惠州市陈江大道中26号文化广场对面(义乌正对面)
深圳校区地址:深圳市龙岗区布吉街道吉华路179号七天酒店三楼
张老师 二维码xxzxiaobei

承接家庭、店铺、凉亭等深圳真石漆涂料施工,房屋墙面批灰翻新,墙面漆等油漆涂料施工。真石漆又称石头漆、大理石漆,是一种装饰后酷似大理石、花岗岩的涂料,它采用自然的石粉以及助剂配制而成,干固后坚硬如石,如

自来水管道漏水检测,消防管道漏水破损检测。您是否经历过水表转速过快、压力不够,眼睁睁的看着宝贵的水资源白白流失并造成巨大的经济损失,却苦于找不到地下管道的漏水点?光铭管线技术有限公司专业从事地下压力管道破损漏水检测服务,包括地下自来水管漏水检测、消防水管漏水检测等,为您精准查出漏点位置,大大节省开挖修复成本。

澳头纱窗安装制作,惠阳纱窗西区防盗门惠阳木门阳台推拉门纱窗上门设计,惠阳淡水金刚网纱窗- 惠州大亚湾建材服务防蚊纱窗总汇,惠阳纱窗主营:纱窗,窗花,护栏,铝艺制品惠阳区防蚊纱窗找纱窗纱门窗花纱窗厂,主要经营:惠阳窗花纱窗批发、淡水铝焊窗花

前海湾门窗制作,皇庭港湾纱窗安装,南山纱窗门窗定做,后海纱窗安装门窗维修定做,后海纱窗安装.华侨城纱窗门窗安装,食堂纱窗安装,餐厅纱窗安装,酒店纱窗安装,深圳门窗制品安装

西乡窗帘安装;安装窗帘平台_师傅在线接单西乡家庭窗帘安装西乡遮光窗帘安装_家居布艺窗帘_办公百叶窗帘定做西乡写字楼布艺窗帘安装上门安装 办公窗帘安装哪里有西乡窗帘店做窗帘安装、工业园窗帘、写字楼别墅窗帘,广东深圳福永沙井松岗公明西乡宝安上门安装窗帘,卷帘,布艺窗帘,豪庭居安家窗饰窗帘产品有手动和电动窗帘系列。

深圳南山窗帘,深圳南山百叶窗帘,深圳百叶窗帘安装深圳南山区窗帘专业做窗帘、南山办公室窗帘定做深圳南山窗帘、南山做窗帘、南山科技园窗帘~南山科技园会议室垂直窗帘

光铭管线技术有限公司是专业从事地下自来水消防管道漏水,进行查漏技术服务的队伍。地下管道年久失修,产生漏水怎么办?如果考虑经济利益原因的话,漏水检测就是解决管道漏水的唯壹方法。漏水检测,即通过应用专业设备和仪器,查找地下供水管道漏水的一种方法,也是目前地下管道已经产生漏水问题解决的唯壹办法。

光铭管线技术有限公司提供专业漏水检测技术服务,主要从事广东各地大小物业单位和市政的地下水管漏水检测服务及管网普查服务;公司引进的各类探测仪器均属国际壹流的同行类仪器,配合技术壹流、经验丰富的工程师队伍,可在蕞短的时间内准确定位漏水点。

岗头纱窗安装门窗定做岗头纱窗安装;深圳装修公司_深圳装饰公司_办公室装修_厂房装修深圳装修安装公司

龙岗窗帘订做厂家_电动窗帘|深圳电动窗帘厂|深圳办公窗帘|深圳窗帘|深圳办公窗帘厂家深圳窗帘,深圳龙岗窗帘,深圳电动窗帘,深圳办公窗帘龙岗窗帘智能窗帘 _智能窗帘控制系统龙岗周边窗帘批发|龙岗窗帘|龙岗家居窗帘|龙岗窗帘厂家|龙岗电动窗帘阳光房|户外遮阳帘-电动天棚帘批发-办公窗帘生产厂家龙岗周边窗帘

车工庙做窗帘安装提供福田窗帘安装。深圳福田办公窗帘,深圳福田办公室窗帘,福田窗帘_深圳岗厦窗帘,深圳窗帘,深圳南山窗帘定做,深圳福田窗帘定制窗帘,福田窗帘福田窗帘安装-福田窗帘安装

深圳窗帘安装;南山前海窗帘订做,前海家居窗帘定做,前海窗帘上门安装南山区前海地铁站附近厂房遮阳窗帘、百叶窗帘垂直帘订做

深圳市全国殡仪接送,深圳运遗体,运骨灰,殡仪馆租车

食堂纱窗安装,餐厅纱窗安装,酒店纱窗安装,深圳门窗制品安装;豪庭居安门窗龙华铝合金门窗,龙华塑钢门窗,龙华隔音玻璃门窗封阳台安装 豪庭居安门窗工程部专业加工制作铝合金门窗,塑钢门窗,所用的铝材均采用国内品牌,客户来电洽谈惠顾!可以预约免费上门测量尺寸.

石岩窗帘安装遮光窗帘,石岩安装窗帘;石岩窗帘工厂订做?石岩那里有订做办公卷帘呢!你是否为了在石岩这繁华地段寻找窗帘店面呢,亲、没有的的。石岩这周围都是办公楼的,没有做窗帘的。

石岩窗帘订做上门安装制作

食堂纱窗安装,餐厅纱窗安装,酒店纱窗安装,深圳门窗制品安装;豪庭居安门窗龙华铝合金门窗,龙华塑钢门窗,龙华隔音玻璃门窗封阳台安装 豪庭居安门窗工程部专业加工制作铝合金门窗,塑钢门窗,所用的铝材均采用国内品牌,客户来电洽谈惠顾!可以预约免费上门测量尺寸.

深圳南山窗帘,深圳南山百叶窗帘,深圳百叶窗帘安装深圳南山区窗帘专业做窗帘、南山办公室窗帘定做深圳南山窗帘、南山做窗帘、南山订做定制窗帘

食堂纱窗安装,餐厅纱窗安装,酒店纱窗安装,深圳门窗制品安装;豪庭居安门窗,宝安铝合金门窗,宝安纱窗门窗,宝安隔音玻璃门窗封阳台安装 豪庭居安门窗工程部专业加工制作铝合金门窗,塑钢门窗,所用的铝材均采用国内品牌,客户来电洽谈惠顾!可以预约免费上门测量尺寸.

前海窗帘安装制作遮光窗帘,南山前海窗帘安装,深圳南山窗帘加工、深圳南山窗帘制作,深圳南山布艺窗帘,深圳酒店别墅南山窗帘,深圳电动窗帘、

鲁达开锁培训学校常年招生,混动开班。有连续班、周日班、周六班。学住一体、环境优美、师资强大,专家授课,理论实操结合,并在出徒后提供技术指导,学员毕业后可由本校辅助学员在本地进行备案事项。 本公司是一家...
学校常年开设:电工、焊工、叉车、制冷、高空、电梯、起重机、安全主任、企业负责人等培训考证;成人高考、网络远程教育、语言类培训、会计、电脑类培训。 欢迎有志者报读!学技术,考证件,享受政府补贴! 学校简...
学校常年开设:电工、焊工、叉车、制冷、高空、电梯、起重机、安全主任、企业负责人等培训考证;成人高考、网络远程教育、语言类培训、会计、电脑类培训。 欢迎有志者报读!学技术,考证件,享受政府补贴! 学校简...
华特培训中心课程介绍 咨询 华特培训中心为十五年的会计培训机构,致力于“理论+实操”的教学模式,目前开设的班别主要有: *标准考证班 零基础导入,标准考证课程。针对考试,全面系统讲解考试教材,快速提升...
二级建造师的资格对于建造人员来说就是敲门砖,相关监管部门,加强施工企业动态化管理,考核加强,如何备考学习自己能够通过二级建造师?优路教育就为您提供了二建学习平台。 优路教育二级建造师课程专为参加二级建...
面对面授课,一对一讲解,投影显示,黑板上剖析,人人上台演示,互教互学,理论联系实际,经验用于实践,以三分理论,七分实践为目标,争取每人开发两款中、大功率电源,走出学校。 招生对象: 零基础,欲从事开关...
深圳电工上岗证哪里考,深圳考电工证需要什么条件,学电工 深圳考电工证,深圳考低压电工证。 深圳低压电工操作证怎么报名考,电工操作证在深圳市考一个安监电工低压操作证要多少费用? 低压电工证”,又称“IC...
深圳哪里学叉车?深圳哪里考叉车司机上岗操作证?龙诚职业培训学校给你专业的叉车培训。 报叉车培训,,。有技术才有更好的发展,有了更好的发展才能让家人过得更好。龙诚学校让大家感受到深圳冬天的温暖。 培训班...

华考电工证、龙华哪里有考电工证、龙华电工操作证培训建筑电工培训就在家家户户都少不了用电,每个企业工厂都有很多的电力设备,电工行业人才越来越紧缺,据就业部门分析,由于多数企业都需要电工,所以作为技术工种...

学校拥有良好的办学条件和环境。学校占地面积3000M2,建筑面积7740M2。内设多媒体电教室16间,3间计算机房(180台电脑),2间160M2的电工实验室、车床实验室和1间焊工操作室,10间钢琴室...